GIỚI THIỆU DỰ ÁN THE GLOBAL CITY
The Global City là một khu đô thị hạng sang mang tính biểu tượng của toàn khu vực Đông Nam Á theo chuẩn quốc tế bởi sự tích hợp hoàn hảo “tất cả trong một”. Khu phức hợp khép kín với đầy đủ tiện ích 5 sao, môi trường sống xanh, vận hành thông minh. Dự án chính là “ngôi nhà quốc tế” đầu tiên tại phường An Phú, TP.Thủ Đức do tập đoàn bất động sản uy tín Masterise Group làm chủ đầu tư.
Khu đô thị thông minh The Global City Thủ Đức đáp ứng đầy đủ tất cả nhu cầu của cư dân từ mua sắm, vui chơi giải trí đến học tập, y tế, chăm sóc sức khỏe. Đây là những tiêu chuẩn vô cùng khắt khe cho một dự án bất động sản hạng sang và chỉ một số ít doanh nghiệp tiềm lực tại Việt Nam như Masteri Homes thực hiện được những công trình mang tính biểu tượng cho cuộc sống thượng lưu.
Một loạt cái tên nổi tiếng đã khẳng định vị thế tại thị trường thành phố Hồ Chí Minh mà Masteri Homes phát triển gần đây như: Masteri An Phú, Masteri Centre Point, Masteri Lumière Riverside, Grand Marina Saigon, One Central Saigon…Với uy tín và chuẩn mực quốc tế Masteri Homes đã biến dự án The Global City trở thành khu đô thị khép kín với khả năng chăm sóc cư dân theo tiêu chuẩn cao cấp nhất.

TỔNG QUAN DỰ ÁN THE GLOBAL CITY

- Tên Dự Án: The Global City
- Vị Trí: Đường Đỗ Xuân Hợp, Phường An Phú, TP. Thủ Đức (Địa chỉ cũ, Phường An Phú, Quận 2, TP.Hồ Chí Minh)
- Chủ Đầu Tư: Masterise Group
- Tổng Diện Tích: 117,4ha
- Quy Mô Dự Án: Cao tầng khoảng 10.000 sản phẩm, thấp tầng khoảng 1.800 sản phẩm
- Loại Hình Phát Triển: Căn hộ hạng sang, Nhà phố, Shophouse, Villas
- Công Ty Thiết Kế: Foster and Partners (Anh)
- Mật Độ Xây Dựng: 26%
- Pháp Lý: Người Việt sở hữu vĩnh viễn. Người nước ngoài sở hữu 50 năm
- Tiêu Chuẩn Bàn Giao: Hoàn thiện cơ bản
- Khởi Công Xây Dựng: Năm 2021
- Dự Kiến Hoàn Thành: Năm 2025
ĐĂNG KÝ NHẬN TƯ VẤN VÀ BẢNG BÁO GIÁ TẠI ĐÂY
LIÊN HỆ NHẬN TÀI LIỆU DỰ ÁN
-0345 66 55 88
VỊ TRÍ ĐẮC ĐỊA THE GLOBAL CITY
The Global City tọa lạc tại vị trí chiến lược đường Đỗ Xuân Hợp, Phường An Phú, Quận 2, TP.Hồ Chí Minh (Nay thuộc TP Thủ Đức) trong đó Quận 2 là khu vực có tốc độ đô thị hóa nhanh, sự phát triển bứt phá về hạ tầng giao thông và được nhận định là quận sở hữu vị trí bất động sản đẹp nhất tại khu Đông Sài Gòn.
Với quy hoạch hiện đại và đồng bộ Global City Masteri hứa hẹn sẽ là khu đô thị kiều mẫu góp phần vào sự phát triển không ngừng của TP.Thủ Đức. Dự án tạo nên một diện mạo mới hiện đại, cũng như mở rộng thị trường bất động sản sôi động cho TP.Hồ Chí Minh.

Vị Trí Thúc Đẩy Tiềm Lực Tăng Giá
Nhờ sở hữu vị trí đắc địa ngay tại trung tâm quận 2, bốn mặt giáp với trục đường trọng điểm và những khu đô thị hiên đại đã được vận hạnh trong nhiều năm qua, đã làm tăng thêm giá trị cho những công trình bất động sản tọa lạc tại đây.
- Phía Đông giáp với đường Đỗ Xuân Hợp
- Phía Tây giáp khu đô thị Sài Gòn Sports City
- Phía Nam giáp cao tốc TP.Hồ Chí Minh – Long Thành – Dầy Giây
- Phía Bắc giáp khu đô thị The Rivus Saigon
Khả năng liên kết nối vùng hoàn hảo và chặt chẽ
Với vị trí đắc địa nằm trên trục đường cao tốc Long Thành – Dầu Giây, dự án The Global City Thủ Đức được thừa hưởng trọn vẹn lợi thế từ hạ tầng giao thông, giúp cư dân nhanh chóng di chuyển và tiếp cận các khu vực lân cận.
Với 8-10 phút cư dân The Global City nhanh chóng kết nối đến các điểm: Tuyến Metro số 2, công viên An Phú, bệnh viện D2, trường quốc tế Úc, bệnh viện Quốc Tế Mỹ, trung tâm thương mại Vincom Thảo Điền…
Với 15 phút di chuyển đến các tiện ích tiện ích: Giải trí mua sắm, chăm sóc sức khỏe, hệ thống giáo dục các trường quốc tế tại quận 2.
Với 20 phút di chuyển vào trung tâm thành phố HCM như: Đường hoa Nguyễn Huệ, nhà thờ Đức Bà, Ủy Ban Nhân Dân Thành Phố…
Với 30 phút di chuyển đến: Cảng hàng không quốc tế Sân Bay Tân Sơn Nhất thông qua đường Xa Lộ Hà Nội.
Khả năng kết nối giao thông thuân tiện và nhanh chóng đến các tỉnh lân cận như: Đồng Nai, Bình Dương, Vũng Tàu, Bình Dương thông qua trục đường cao tốc Long Thành – Dầu Giây.
Với 25 phút di chuyển nhanh chóng đến các khu tiện ích tại khu đô thị Thủ Thiêm, tòa nhà Lanmark 81 Bình Thạnh.
TIỆN ÍCH DỰ ÁN GLOBAL CITY
The Global City Thủ Đức được quy hoạch thành khu phức hợp mang biểu tượng của toàn khu vực Đông Nam Á, lần đầu tiên sử dụng công nghệ năng lượng mặt trời cho toàn bộ công trình. Dự án được quy hoạch hiện đại theo tiêu chuẩn khu đô thị cao cấp hạng sang bao gồm: Bệnh viện, trường học, công viên xanh, khu vui chơi giải trí, hồ bơi, sân thể thao, khu mua sắm…
Tất cả các công trình tiện ích đều được thiết kể tỉ mỉ từ đội ngũ kỹ sư tài năng Foster and Partners, nhằm mang lại những trải nghiệm chưa từng có cho cư dân sinh sống tại đây.
Chuỗi hệ thống tiện ích “tiêu chuẩn 5 sao” tại Global City đã dẫn đầu xu hướng “sống sang” đáp ứng thỏa mãn nhu cầu cuộc sống nghỉ dưỡng cho cư dân, mặt khác chủ đầu tư đã nghiên cứu áp dụng công nghệ hiện đại trong quản lý vận hành khu đô thị một cách thông minh nhất.
Dự Án The Global City Quận 2 đã kiến tạo không gian sống hiện đại cho cộng đồng cư dân tại đây. Khu phức hợp là mô hình khu dân cư hiện đại, nơi hội tụ những cư dân tinh hoa từ khắp nơi trên thế giới về đây sinh sống để cùng nhau trải nghiệm những tiện ích đẳng cấp như những khu đô thị nổi tiếng tại các nước tiên tiến trên thế giới.
Tiện ích nội khu
- Trường học liên cấp quốc tế
- Bệnh viện đa khoa quốc tế
- Công viên xanh ngoài trời
- Trung tâm thương mại đẳng cấp
- Phòng tập Gym hiện đại
- Hệ thống tiện ích vườn nướng BBQ ngoài trời
- Hệ thống hồ bơi resort cho người lớn và trẻ em
- Khu vui chơi giải trí đa năng
- Hệ thống khu thể thao tennis, cầu long, bóng rổ
- Hệ thống camera an ninh 24/7
Tiện ích ngoại khu
- 5 phút đến khu liên hợp thể thao quốc gia Rạch Chiếc
- 5 Phút đến tuyến metro số 1 và metro số 2
- 5 Phút đến Vincom Mega Mall Thảo Điền
- 5 Phút đến Lotte Cinema Cantavil
- 10 phút đến Siêu thị Coopmart Pearl Plaza
- 10 phút đến Bệnh viện VinMec
- 10 phút đến Thảo Cầm Viên Sài Gòn
- 15 phút đến Đại học Quốc gia TP.HCM
- 15 phút đến Chợ Bến Thành
- 15 phút đến Đường Nguyễn Huệ
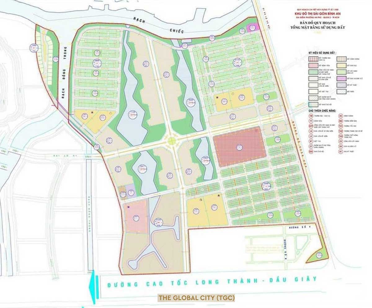
MẶT BẰNG DỰ ÁN THE GLOBAL CITY
Khu đô thị The Global City được quy hoạch trên tổng diện tích lên đến 117,4 ha, trong đó đất dành cho hạng mục phát triển nhà ở khoảng 89,5 ha, phần diện tích đất còn lại để xây dựng hạ tầng giao thông, công trình tiện ích phục vụ cho cư dân.

Trong 89,5ha Đất Nhà Ở Được Chia Thành 2 Phân Khu
- Phân khu cao tầng bao gồm 10.000 căn hộ hạng sang
- Thiết kế xây dựng từ: 1 – 2 – 3 – 4 phòng ngủ
- Diện tích từ: 50m2 – 70m2 – 90 m2 – 100m2 – 150m2
- Phân khu thấp tầng bao gồm 1800 căn: Nhà phố, villas, shophouse
- Thiết kế xây dựng nhà phố: 4 tầng (1 trệt + 3 lầu), DT đất: 85 – 95 – 120m2
- Thiết kế xây dựng Villas: 3 tầng (1 trệt + 2 lầu), DT đất: 180 – 200 – 300 – 400m2
- Thiết kế xây dựng Shophouse: 4 tầng (1 trệt + 3 lầu), DT đất: 90-100-150m2
Tất cả những sản phẩm từ căn hộ đến nhà phố, biệt thự, shophouse tại Dự Án The Global City Quận 2 đều được thiết kế theo phong cách hiện đại, mang tính biểu tượng khu vực Đông Nam Á. Mỗi sản phẩm được thiết kế chú trọng vào không gian sống hòa nhập cùng thiên nhiên xanh, không gian bên trong mỗi phòng đều được thiết kế mở rộng, đón nắng và gió tự nhiên.
Nhờ những thiết kế có sự tính toán kỹ lưỡng từ các kỹ sư tài năng đã tạo nên một môi trường sống thư giãn, luôn tràn đầy năng lượng cho tất cả thành viên trong gia đình mỗi khi sum họp trong ngôi nhà của chính mình.
ĐĂNG KÝ NHẬN TƯ VẤN VÀ BẢNG BÁO GIÁ TẠI ĐÂY
LIÊN HỆ NHẬN TÀI LIỆU DỰ ÁN
-0345 66 55 88
THIẾT KẾ SẢN PHẨM DỰ ÁN THE GLOBAL CITY
Khu đô thị được quy hoạch thành nhiều phân khu với chức năng khác nhau, trong đó diện tích đất ở được chia thành 2 phân khu chủ lực: Cao tầng và thấp tầng.
Phân khu thấp tầng
- + Biệt thự The Global City với diện tích từ (180 – 200 – 300 – 400m2) được thiết kế theo phong cách tân cổ điển sang trọng nhưng không kém phần hiện đại.
- + Nhà phố The Global City với diện tích từ 85 – 95 – 120m2 được thiết kế theo phong cách Đông Dương hòa với đường nét sang trọng, hiện đại của Châu Âu.
- + Shophouse The Global City với diện tích từ 90-100-150m2 được thiết kế theo phong cách hiện đại, không gian mỗi tầng rộng lớn, có ban công đón gió trời. Đáp ứng đầy đủ chức năng vừa kinh doanh vừa để ở.
Sống tại khu thấp tầng xen kẻ là những mảng xanh bạn như đang lạc trong một thiên đường, nơi mà bạn cùng những người thân yên chia sẻ những lời ngọt ngào, khẳng định cuộc sống thượng lưu.
Phân khu cao tầng
Những căn hộ chung cư The Global City từ 1PN-2PN-3PN-4PN được thiết kế tinh xảo, thiết kế mở đón anh sáng tự nhiên giúp không gian rộng hơn thực tế, nguồn sáng tự nhiên còn có khả năng làm bầu không khí trở nên trong lành và thoáng đãng, cải thiện sức khỏe và tâm trạng của gia chủ.
CHÍNH SÁCH BÁN HÀNG DỰ ÁN THE GLOBAL CITY
Dự án sẽ được ra mắt và mở bán đợt 1 vào đầu năm 2022, chính sách bán hàng chính thức chưa được công bố, quý khách có thể tham khảo chính sách bán hàng The Global City dự kiến ở bên dưới.
Thanh Toán Theo Tiến Độ
- Đợt 1: Thanh toán 10% sau 7 ngày ký phiếu đăng ký nguyện vọng
- Đợt 2: Thanh toán 10% sau 90 ngày kể từ ngày thành toán đợt 1
- Đợt 3: Thanh toán 10% sau 90 ngày kể từ ngày thành toán đợt 2
… - Đợt 9: Thanh toán 5% vào ngày sản phẩm được cấp giấy chứng nhận quyền sử dụng đất , quyền sở hữu nhà ở và tài sản khác gắn liền với đất.
Vay Vốn Ngân Hàng
- Ngân hàng techcombank cho vay lên đến 70% (đã bao gồm VAT)
- Mức dư nợ được hưởng hỗ trợ lãi suất lên đến 70% giá bán (đã bao gồm VAT)
- Lãi suất và thời gian hỗ trợ lãi suất 0% trong thời gian 30 tháng kể từ ngày giải ngân
- Thời gian ân hận nợ gốc kể từ ngày giải ngân đầu tiên lên đến 30 tháng
- Phí trả nợ trước hạn trong thời gian hỗ trợ lãi suất 0%
GIÁ BÁN DỰ ÁN THE GLOBAL CITY
Hiện tại dự án The Global City Thủ Đức chưa định ngày chính thức mở bán, theo kế hoạch dự kiến vào đầu năm 2022 chủ đầu tư sẽ chia thành 18 đợt mở bán liên tiếp.
- Đợt 1 mở bán trước 100 căn nhà phố áp dụng cho tất cả các loại diện tích 85m2 – 95m2.
+ Giá bán nhà phố The Global City dự kiến 350 triệu/m2.
+ Giá bán đã bao gồm diện tích đất + xây dựng + chưa VAT. - Đợt 2 mở bán tiếp tục phân khu thấp tầng gồm biệt thự, shophouse diện tích từ 90 -150m2.
- Đợt 3 mở bán các tòa chung cư cao cấp đầu tiên, giá bán dự kiến 55 triệu/m2 (chưa VAT).
LÝ DO ĐẦU TƯ DỰ ÁN GLOBAL CITY
- Chủ đầu tư bất động sản uy tín, tiềm lực tài chính vững mạnh
- Masteri Homes là thành viên của Masterise Group là chủ đầu tư hàng đầu tại Việt Nam với uy tín và có nhiều năm kinh nghiệm trong việc phát triển các dự án bất động sản cao cấp tại thị trường Việt Nam như: Grand Marina Saigon, One Central Saigon, Masteri An Phú, Masteri Thảo Điền, Masteri Centre Point, Khu Dinh Thự Vinhomes Grand Park, Lumiere Riverside, Masteri West Height, The Grand…
- Masteri Homes luôn mang đến những giải pháp an cư, gia tăng giá trị không ngừng theo thời gian, đáp ứng được kỳ vọng khách hàng mà còn hướng đến giá trị sống với hệ sinh thái toàn diện, đẳng cấp quốc tế.
- Sở hữu vị trí đắc địa nằm ngay trung tâm thành phố Thủ Đức
- Dự án The Global City Quận 2 tọa lạc tại vị trí trung tâm thành phố mới Thủ Đức, đây là vị trí đắc địa kế bên trung tâm hành chính mới khu đô thị Thủ Thiêm. Đây được xem là điểm cộng góp phần nâng cao giá trị cho dự án trong tương lai gần.
- Sở hữu vị trí “nhất cận thị, nhị cận giang, tam cận lộ” di chuyển nhanh chóng đến các khu tiện ích ngoại khu đang hoạt động của quận 2, quận 9 và dễ dàng đi đến các khu đô thị xung quanh chỉ trong vài phút như Sài Gòn Sports City, Lake View City, Palm City, Estella heights, Masteri Thảo Điền…
- Khu đô thị kiều mẫu biểu tượng của toàn khu vực Đông Nam Á
- Được bao quanh bởi sông Sài Gòn, khu đô thị The Global City Quận 2 được kỳ vọng sẽ là khu đô thị đẹp nhất và đáng sống nhất Đông Nam Á. Khu phức hợp được xem là trung tâm mới, hiện đại và mở rộng của trung tâm thành phố Thủ Đức trong thế kỷ 21.
- The Global City Thủ Đức là công trình chiến lược mở ra cơ hội tăng tốc phát triển mọi mặt và nâng cấp thành phố Hồ Chí Minh ngang tầm các đô thị hiện đại của khu vực và quốc tế. Chỉ 2-3 năm nữa thôi nơi đây sẽ hình thành nên một khu đô thị kiều mẫu mang tính biểu tượng của toàn khu vực Đông Nam Á.
- Sở hữu chuỗi hệ thống tiện ích theo tiêu chuẩn resort 5 sao
- Với mục tiêu cải thiệt chất lượng cuộc sống cho người Việt, Masteri Homes đã đầu tư xây dựng khu đô thị The Global City với không gian yên bình, xanh mát, nơi cư trú vun đắp những phút giây hạnh phúc cùng với đó là hệ thống tiện ích chuẩn 5 sao như khu mua sắm, hồ bơi resort, công viên thể thao, sân chơi bóng rỗ, cầu long, bóng chuyền, tennis, sân golf…
- Cũng tại thành phố quốc tế này, cư dân chỉ cần bước chân ra khỏi nhà có thể thoải mái chạy bộ, tập luyện thể thao với hàng loạt các công trình mang tính biểu tượng như đường dạo bộ, công viên xanh, quảng trường thác nước, hệ thống vui chơi giải trí liên hoàn đẳng cấp dành cho trẻ em và người lớn.
- Khu thấp tầng duy nhất còn sót lại tại trung tâm Quận 2
- Sở hữu quy hoạch vàng hài hòa giữa hệ thống tiện ích riêng, tinh tế xen kẽ giữa các khu căn hộ cao cấp, khu nhà phố, shophouse, biệt thự tại The Glogbal City Quận 2 ôm trọn không gian xanh giữa trung tâm thành phố Thủ Đức.
- Phân khu thấp tầng 1.800 căn nằm trong quỹ đất lên đến 117,4ha chiếm đóng ngay tại trung tâm thành phố Thủ Đức, được các chuyên gia đánh giá đây là phân khu nhà ở thấp tầng duy nhất còn sót lại bên trong quỹ đất trung tâm thành phố Thủ Đức.
- Chính vì độ khang hiếm quỹ đất phát triển nhà ở thấp tầng, sản phẩm tại dự án The Global City Thủ Đức sẽ mang lại cho khách hàng những giá trị tốt và tiềm năng tăng giá cao nhất khi sở hữu ngôi nhà tại đây.
- Tiềm năng tăng giá vượt trội ngay tại dự án The Global City
- Công trình sở hữu vị trí ngay tại Quận 2 thuộc TP.Thủ Đức nằm tại phía Đông TP.HCM, là nơi có vị trí chiến lược quan trọng. Đến nay Quận 2 đã hình thành nên các khu đô thị được quy hoạch chuyên nghiệp, cơ sở hạ tầng giao thông phát triển mạnh.
- Quận 2 còn được quy hoạch là trung tâm hành chính, tài chính mới, thu hút nhiều tập đoàn từ khắp nơi trên thế giới đến đây đầu tư.
- Các dự án bất động sản đang tọa lạc tại Quận 2 hiện nay đã tăng giá vượt trội trong 2 năm gần đây, mức tăng trưởng không ngừng là minh chứng khẳng định giá trị bất động sản khu vực này luôn được thị trường đón nhận cao hơn so với các khu vực khác.
- Dự án The Global City Thủ Đức cũng không nằm ngoài quy luật đó, mặt khác đây là công trình mang tính biểu tượng của toàn bộ khu vực Đông Nam Á, chắc chắn sẽ mang lại giá trị vượt trội hơn nữa cho những nhà đầu tư thông thái.
Quý khách vừa tìm hiểu thông tin dự án, để hiểu rõ hơn về dự án như: Chính sách bán hàng, Chính sách vay vốn ngân hàng, Chính sách ưu đãi, Giá bán chính gốc từ chủ đầu tư hoặc Quý khách có nhu cầu tham quan thực tế dự án, tham quan nhà mẫu
Quý khách vui lòng điền đủ thông tin vào form “ĐĂNG KÝ NHẬN THÔNG TIN TƯ VẤN”. Bộ phận kinh doanh sẽ liên lạc và tư vấn cụ thể hoặc có thể gọi HOTLINE để hỗ trợ tư vấn !
Đăng ký nhận thông tin tư vấn dự án
Câu hỏi thường gặp
Chủ đầu tư dự án The Global City là ai ?
Dự án được đầu tư bởi tập đoàn bất động sản uy tín nhất hiện nay là Masterise Group. Đây là chủ đầu tư chuyên phát triển các dự án căn hộ hạng sang, căn hộ hàng hiệu tại TP. HCM.
Địa chỉ The Global City ở đâu ?
Dự án nằm tại địa chỉ: đường Đỗ Xuân Hợp, Phường An Phú, TP. Thủ Đức ( địa chỉ cũ Quận 2, Phường An Phú, TP.HCM )
Tiến độ The Global City Thủ Đức thế nào ?
Hiện tại dự án đang trong quá trình sang lấp mặt bằng, đóng cọc làm móng chuẩn bị cho giai đoạn mở bán đợt 1 vào đầu năm 2022.
Nhà mẫu The Global City ở đâu ?
Địa chỉ nhà mẫu The Global City nằm tại Quận 2, TP.HCM
Giá bán dự án The Global City bao nhiêu ?
Giá bán nhà phố giai đoạn 1 dự kiến 350 triệu/m2
Giá bán chung cư giai đoạn 1 dự kiến 60 triệu/m2
Chung cư The Global City Quận 2 giá bao nhiêu ?
Căn hộ chung cư có giá bán giao đoạn 60-80 triệu/m2